Wohnen in Vollendung.
Wir wählen unsere Wohnprojekte mit höchster Sorgfalt – nur Orte mit echtem Potenzial werden Teil unseres Portfolios. So entstehen Lebensräume, die inspirieren: stilvoll, modern und individuell, mit Liebe zum Detail gestaltet. Gleichzeitig setzen wir auf Nachhaltigkeit, Energieeffizienz und ein Konzept, das weit in die Zukunft wirkt.
In Bad Nauheim treffen Charme und Lebensqualität aufeinander – ein Umfeld, das wir in unseren Projekten bewusst aufgreifen und bereichern. So entstehen Wohnräume, die die Stadt widerspiegeln und gleichzeitig den modernen Ansprüchen ihrer Bewohner gerecht werden.
Rafik Salib, Kalovida
Unsere Projekte
AKTUELLE ANGEBOTE
Burgallee, Bad Nauheim
Im Herzen von Bad Nauheim entsteht ab Frühjahr 2026 ein Wohnensemble der Extraklasse.
Zwölf exquisite Einheiten in einer der begehrtesten Innenstadtlagen bieten ein Wohngefühl, das in Qualität und Gestaltung seinesgleichen sucht.
Weiterlesen
Die klar gegliederte Fassade spiegelt die zeitlose Eleganz des Gebäudes wider, während die vielfältigen Grundrisse Raum für individuelle Lebensentwürfe lassen. Schon das exklusive Entrée an der Südseite vermittelt sofort: Hier handelt es sich um ein Zuhause, das in jeder Hinsicht seiner außergewöhnlichen Lage gerecht wird.
Eingebettet in einen terrassierten, privaten Gartenbereich, verbinden die Loggien mit Ost- und Westausrichtung Ruhe und Entspannung auf höchstem Niveau – und das mitten im pulsierenden, kulturell lebendigen Herzen von Bad Nauheim. Kein Wunder, dass diese Adresse zu den gefragtesten der gesamten Region gehört.
Eine ebenerdig zugängliche Parkgarage unter dem kunstvoll gestalteten Garten erfüllt modernste technische Standards und sorgt für ungestörten Komfort.
Fernab vom Gewöhnlichen bieten die durchdachten Wohnkonzepte für jede Lebensphase die passende Lösung. Unterschiedliche Wohnungsgrößen, barrierefreie Optionen gemäß HBO und flexible Gestaltungsmöglichkeiten ermöglichen ein Wohnen, das so individuell ist wie seine Bewohner – vom herrschaftlichen Residenzstil bis hin zum stilvollen „Downsizing“.
Kalovida lädt Sie ein, dieses außergewöhnliche Projekt zu entdecken – ein Zuhause, das Eleganz, Komfort und Lebensqualität in perfekter Harmonie vereint.
Immobilien mit Charakter – so individuell wie ihre Bewohner.
Adresse
Burgallee 4
61231 Bad Nauheim
Baujahr
Beginn 2026
Wohneinheiten
11 Apartments
1 Penthouse
Parkmöglichkeiten
Tiefgarage mit hochwertigem Parksystem
Sektor
Wohnen
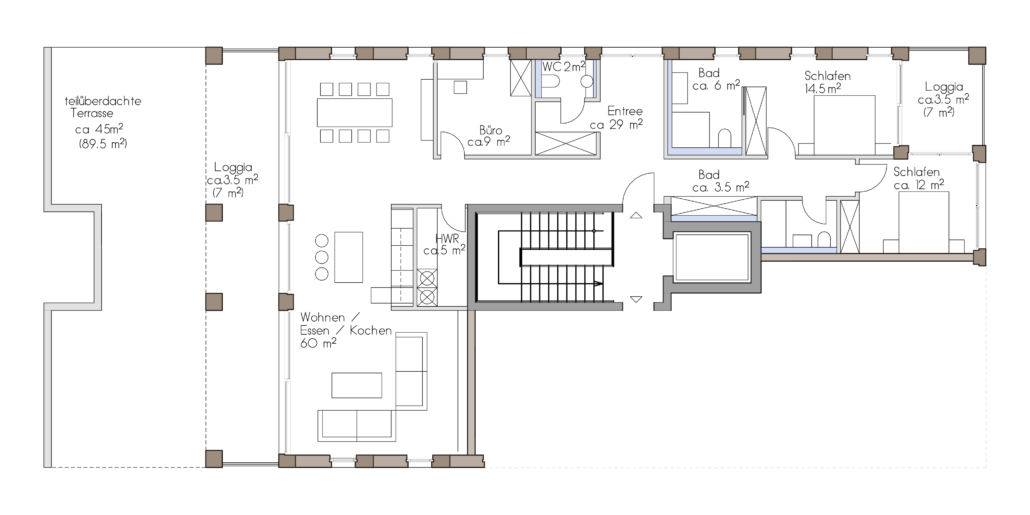
Ebene 2 + 3 Links
Die 4-Zimmer-Appartements bieten 150 m² luxuriöse Wohnfläche.
Der helle Eingangsbereich mit Gäste-WC und großzügiger Garderobenfläche trennt den Schlafbereich im Osten vom Wohnbereich mit Westausrichtung. Zwei separate Schlafzimmer verfügen jeweils über ein Bad en suite, eines davon kann alternativ klassisch vom Flur aus zugänglich gestaltet werden. Eine barrierefreie Ausführung des Masterbads ist möglich.
Weiterlesen
Auf der anderen Seite des Eingangs gelangt man in den großzügigen Wohn-Essbereich mit offener Küche, optional mit Kochinsel. Die über die gesamte Westfassade verlaufende Fensterfront verbindet den Wohnraum mit der großen Loggia und eröffnet den Blick in den terrassierten Garten – ein Rückzugsort mitten im Herzen von Bad Nauheim.
Ein weiteres Zimmer mit bodentiefem Fenster eignet sich als Büro oder Gästezimmer. Praktisch ergänzt wird das Konzept durch einen Hauswirtschaftsraum hinter der Küche, der Platz für Waschmaschine, Trockner und Küchengeräte bietet.
Dieses klar gegliederte Gesamtkonzept vereint Großzügigkeit, Komfort und Wohlbefinden in jeder Lebenssituation.
Grundriss
360°-Rundgang
Erleben Sie diese Wohnung bei einem 360°-Rundgang – als wären Sie schon vor Ort.
Adresse
Burgallee 4
61231 Bad Nauheim
Baujahr
Beginn 2026
Wohneinheiten
11 Apartments
1 Penthouse
Parkmöglichkeiten
Tiefgarage mit hochwertigem Parksystem
Sektor
Wohnen
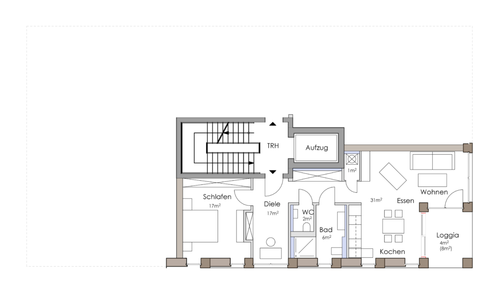
Ebene 1 – 3 Rechts
Hier stehen Ihne 80 m² luxuriöses, barrierefreies Wohnen zur Verfügung.
Der lichtdurchflutete, großzügige Eingangsbereich bietet ausreichend Platz für einen geräumigen Garderobenschrank, aber auch einen Lesesessel oder Schreibtisch.
Weiterlesen
Ein üppig bemessener Schlafraum könnte mit einem großen Kleiderschrank möbliert werden und bietet dennoch ausreichend Bewegungsfläche auch bei barrierefreiem Bedarf. Die bodentiefen Fenster nehmen jegliches Gefühl der Enge.
Für Gäste steht ein vom Flur aus betretbares Gäste-WC zur Verfügung. Das sich anschließende Tageslicht-Masterbad ist barrierefrei konzipiert und lässt keine Wünsche offen.
Der Wohnraum und das Esszimmer sind in sich gegliedert, jedoch über die Diagonale verbunden. Beide Räume sind an die Loggia angebunden. Die Transparenz der Fenster fügt beide Räume wieder zu einer Einheit zusammen.
Auch in dieser kompakten Wohnung sorgt ein separater Hauswirtschaftsraum für ausreichend Platz für Waschmaschine und Trockner.
Die optimale Ausnutzung der zur Verfügung stehenden Flächen macht diese Wohnung zu einem regelrechten Platzwunder für alle, die gerne in überschaubarem Rahmen im Herzen von Bad Nauheim wohnen möchten.
Grundriss
360°-Rundgang
Erleben Sie diese Wohnung bei einem 360°-Rundgang – als wären Sie schon vor Ort.
Adresse
Burgallee 4
61231 Bad Nauheim
Baujahr
Beginn 2026
Wohneinheiten
11 Apartments
1 Penthouse
Parkmöglichkeiten
Tiefgarage mit hochwertigem Parksystem
Sektor
Wohnen
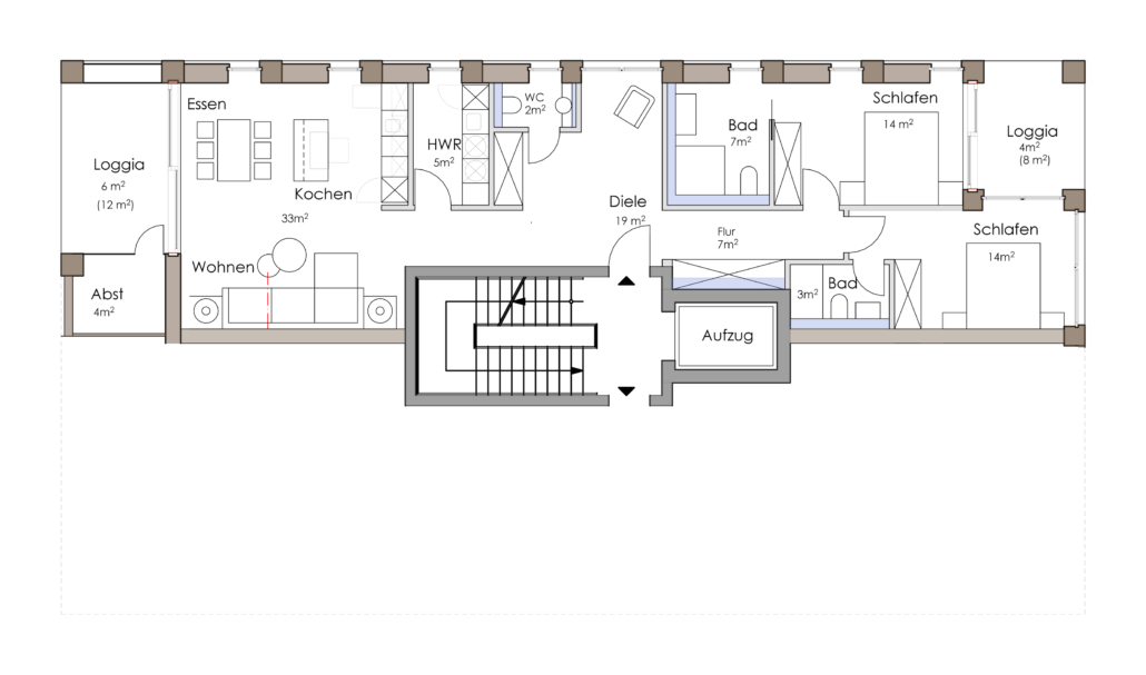
Ebene 4 und 5 Rechts
Diese Wohnung bietet 123 m² durchdacht gestaltete Wohnfläche mit Loggien auf Ost- und Westseite.
Der helle Eingangsbereich mit Gäste-WC und großzügiger Garderobenfläche trennt den privaten Schlafbereich im Osten vom offen gestalteten Wohnbereich mit Westausrichtung. Die weitläufige Diele kann zugleich als eleganter Officebereich genutzt werden.
Weiterlesen
Zwei separate Schlafzimmer verfügen jeweils über ein Bad en suite, wobei eines alternativ klassisch vom Flur aus zugänglich gestaltet werden kann – für größten Komfort und Ruhe. Bereits vom Eingang aus öffnet sich der Blick auf die westseitige Loggia mit freiem Ausblick in den terrassierten Garten.
An die offene Küche mit Kochinsel schließen sich der Ess- und Wohnbereich an. Bodentiefe Fenster betonen das großzügige Raumgefühl und schaffen eine harmonische Verbindung von Licht, Weite und Geselligkeit.
Ein angrenzender Hauswirtschaftsraum hinter der Küchenzeile bietet Platz für Waschmaschine, Trockner und Küchengeräte – funktional durchdacht und dezent integriert.
Grundriss
360°-Rundgang
Erleben Sie diese Wohnung bei einem 360°-Rundgang – als wären Sie schon vor Ort.
Ebene 4 und 5 Links
Diese Wohnung bietet 123 m² durchdacht gestaltete Wohnfläche mit Loggien auf Ost- und Westseite.
Dieses Appartement wird barrierefrei im Sinne der Hessischen Bauordnung ausgeführt.
Der helle Eingangsbereich mit Gäste-WC und großzügiger Garderobenfläche trennt den privaten Schlafbereich im Osten vom offen gestalteten Wohnbereich mit Westausrichtung. Die weitläufige Diele kann zugleich als eleganter Officebereich genutzt werden.
Weiterlesen
Zwei separate Schlafzimmer verfügen jeweils über ein Bad en suite, wobei eines alternativ klassisch vom Flur aus zugänglich gestaltet werden kann – für größten Komfort und Ruhe. Bereits vom Eingang aus öffnet sich der Blick auf die westseitige Loggia mit freiem Ausblick in den terrassierten Garten.
An die offene Küche mit Kochinsel schließen sich der Ess- und Wohnbereich an. Bodentiefe Fenster betonen das großzügige Raumgefühl und schaffen eine harmonische Verbindung von Licht, Weite und Geselligkeit.
Ein angrenzender Hauswirtschaftsraum hinter der Küchenzeile bietet Platz für Waschmaschine, Trockner und Küchengeräte – funktional durchdacht und dezent integriert.
Grundriss
Franz-Groedel-Straße, Bad Nauheim
Drei Stadtvillen – ein klares Bekenntnis zu Stil, Qualität und städtebaulicher Verantwortung.
Auf dem ehemaligen Klinikgelände sind drei außergewöhnliche Stadtvillen mit insgesamt 22 exklusiven Wohneinheiten entstanden. Eingebettet in eine gewachsene Umgebung mit stilvollen Gründerzeitbauten, setzen sie einen architektonischen Akzent – selbstbewusst, aber stets mit dem nötigen Respekt vor dem historischen Stadtbild.
Mit einem feinen Gespür für Design, Funktionalität und Kontext gelingt es Kalovida, seine Projekte nachhaltig und harmonisch in das Stadtgefüge von Bad Nauheim einzufügen. Die besondere Verantwortung eines Bauträgers für hochwertiges Wohnen – gegenüber Käufern ebenso wie gegenüber dem Stadtbild – bildet dabei stets die Grundlage unserer Planung.
Das Ergebnis: Wohnraum in bester Lage, der höchste Ansprüche erfüllt. Kein Wunder, dass diese stilvollen Wohnungen in unmittelbarer Nähe zum Park zu den begehrtesten Adressen der Stadt zählen.
























